
Bienvenue à la Demeure du Rempart
En plein coeur du centre historique de Sarlat-la-Caneda, notre charmante maison adossée au rempart de la cité vous accueille pour un agréable séjour en famille ou entre amis.
La batisse dispose de deux entrées, l’une côté terrasse donnant sur le boulevard Henri Arlet juste en face du Jardin Public du Plantier, l’autre ouvrant directement dans une ruelle piétonne à deux pas de la célèbre Lanterne des morts et de la cathédrale Saint Sacerdos.
La maison est classée meublé de tourisme ***.

Situation
Tous commerces à pied. Plusieurs grandes surfaces à 5 minutes en voiture.
Le Jardin Public juste en face de la maison dispose de jeux pour enfants.
La maison ne dispose pas de place de parking privée, mais vous trouverez de nombreuses places de parking aux alentours.
Descriptif de la location
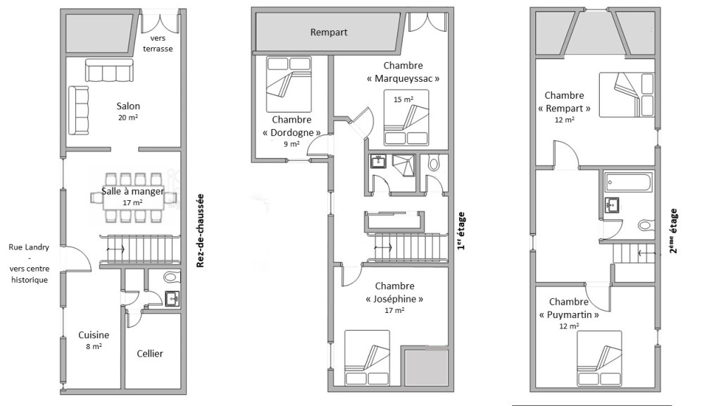
Au rez-de-chaussée, vous trouverez :
- la terrasse pour profiter d’un repas en extérieur
- le salon avec son poêle à bois (décoratif uniquement) et ses murs en pierres apparentes
- la salle-à-manger
- la cuisine
- le cellier
- un WC
Le 1er étage se compose de 3 chambres, un WC et une salle d’eau.
Au 2ème étage se trouvent 2 chambres et une salle de bain avec WC.
La maison n’est malheureusement pas accessible aux personnes à mobilité réduite.
Plan

